
Vers le Grand Père
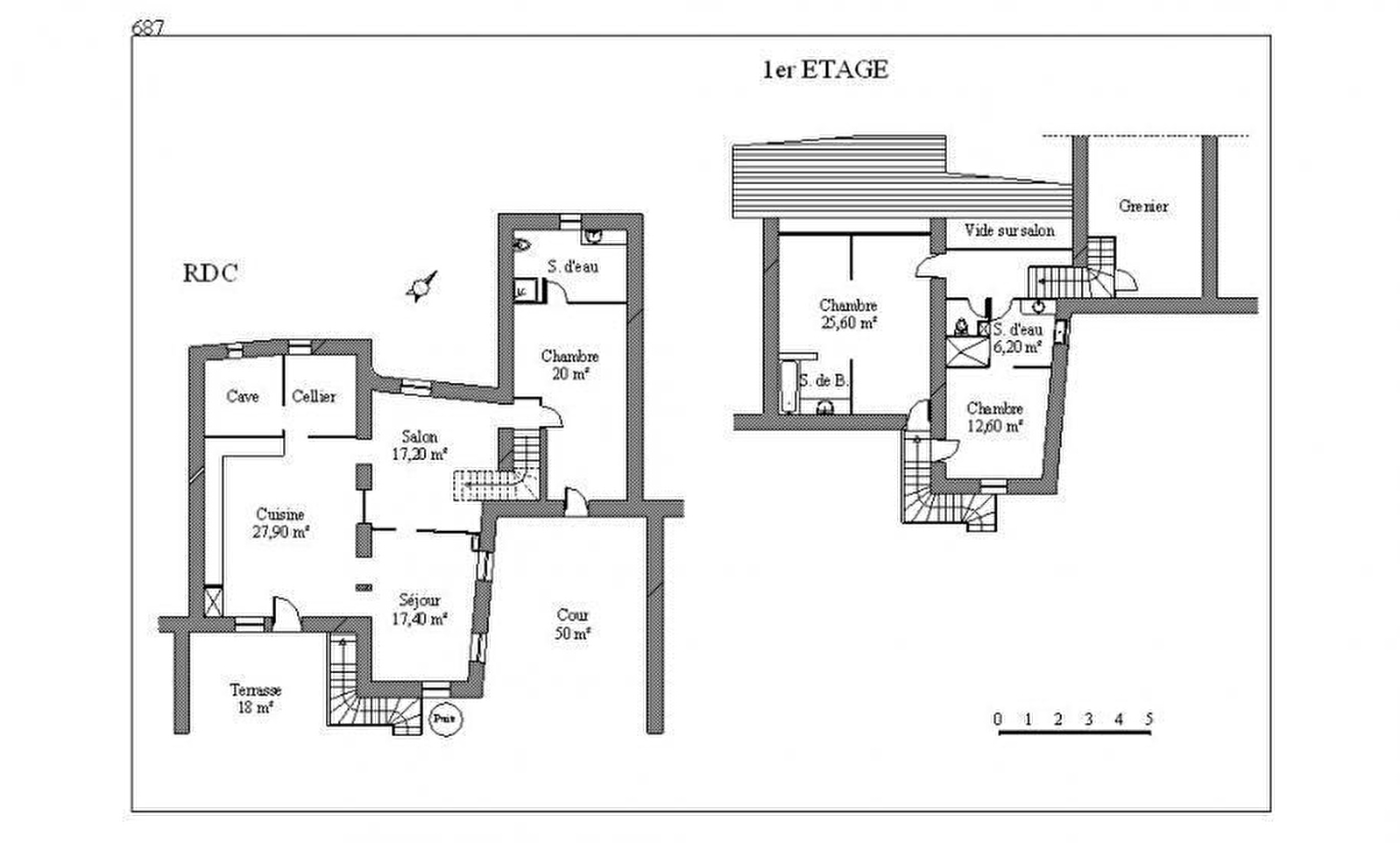
Au centre du village, située dans une impasse très calme, le gîte vers le grand-père vous séduire par le charme de ses vieilles pierres et la qualité de sa rénovation. Rez-de-chaussée : vaste cuisine intégrée de qualité avec poêle à bois, ouverte sur agréable séjour, salon. 1 chambre avec 3 lits 90. Salle d'eau, wc. Cellier, bûcher. Etage: 2 belles chambres avec poutres apparentes, 2 lits 160 et 1 lit 90. L'une avec salle d'eau, l'autre avec salle de bains. Wc indépendant. Mitoyenneté par l'arrière de la maison. Cour de 50 m² close. Jolie terrasse de 18 m² ombragée avec glycine. 2 places de parking. WIFI box orange. TNT. Chaîne-Hifi. Possibilité ménage en fin de séjour avec supplément. Bois offert . Pour bébé : lit pliant, chaise haute, baignoire et transat. Golf 18 trous et 4 restaurants au village. Parcours de santé. Voie verte. Beaune, côté Plage : 14 000 m² de plages, 4 bassins de baignade naturelle, mur d'escalade unique en France, espace restauration.
- Français, Anglais, Espagnol
- 3 chambre(s), 8 personnes(s)
- American Express, Carte bleue, Cartes de paiement, Chèques bancaires et postaux, Chèques Vacances, Espèces, Virements, Visa
- Animaux bienvenus
- Nettoyage / ménage
- WIFI
- Pêche
- Voile
- Nuitée (meublé) : À partir de 198€ (2 nuit(s) minimum)
- Semaine (meublé) : À partir de 1386€
- Caution : À partir de 300€
Disponibilités données à titre indicatif. Pour plus d'informations, veuillez contacter le prestataire.
Contacter le propriétaire Réserver votre séjour





