
Les Marcellières
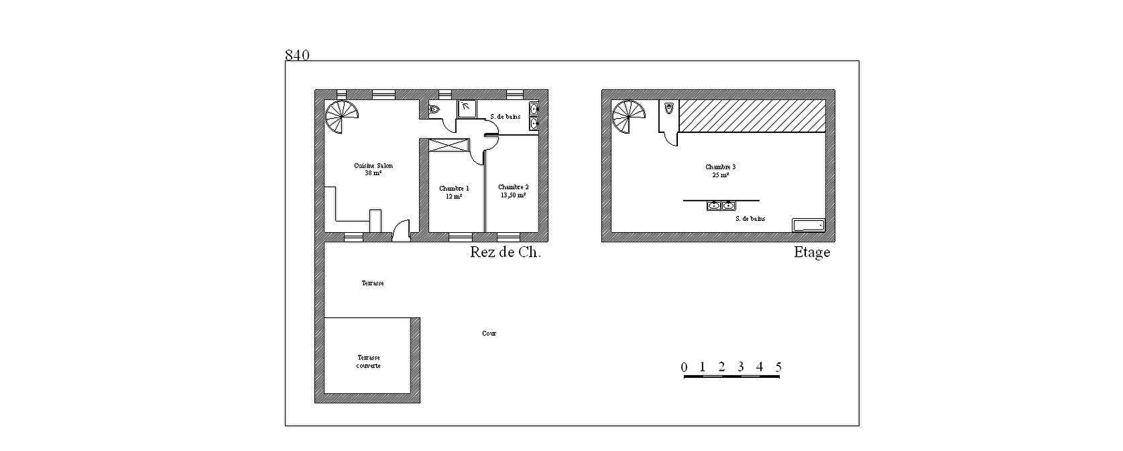
Belle maison en pierres, indépendante et mitoyenne aux propriétaires, jeunes agriculteurs céréaliers. Rénovation contemporaine qui allie le charme de l'ancien et du moderne. Rez-de-chaussée de plain pied : cuisine équipée ouverte sur le salon-séjour. 1 chambre avec 2 lits 90 jumelables. 1 chambre romantique avec 1 lit 140. Salle d'eau à l'italienne et WC séparé. Etage : grande suite parentale zen avec 1 lit 160, salle de bains ouverte avec baignoire d'angle sous pente. WC indépendant. Lit pliant et chaise haute sur demande. A l'extérieur, terrasse couverte de 40 m² et parking fermé. Route à proximité.
Draps, ménage fin de séjour et chauffage (par chaudière à pellets) compris dans les tarifs. En supplément : électricité facturée sur relevé de compteur (au-delà des 8 kwh/jour inclus). En option : linge de toilette : 5 € pour le séjour par personne. Animaux non admis.
Cet hébergement n'est pas adapté aux séjours professionnels.
A visiter : le château du Clos de Vougeot, l'Abbaye de Cîteaux, les villes culturelles et gastronomiques de Nuits-Saint-Georges et Beaune, avec les célèbres Hospices, classés patrimoine mondial de l'Unesco. Dégustations et visites de caves sur la Route des Grands Crus.
- Français, Anglais
- 3 chambre(s), 6 personnes(s)
- American Express, Carte bleue, Cartes de paiement, Chèques bancaires et postaux, Chèques Vacances, Espèces, Virements, Visa
- Animaux interdits
- Gîte Plus : Ménage draps, linge de toilette
- Nettoyage / ménage
- WIFI
- Pêche
- Voile
- Nuitée (meublé) : À partir de 81.5€ (3 nuit(s) minimum)
- Semaine (meublé) : À partir de 570.5€
- Caution : À partir de 300€
Disponibilités données à titre indicatif. Pour plus d'informations, veuillez contacter le prestataire.
Contacter le propriétaire





