
Le Jardin des Templiers
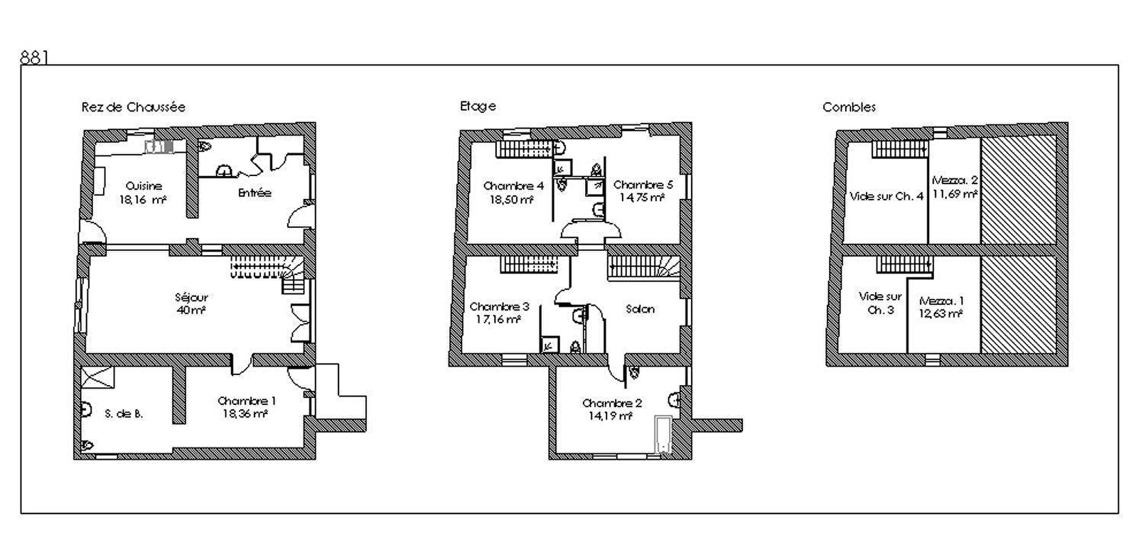
Au coeur du parc national de Forêts, belle maison de village indépendante et rénovée avec goût, dans un esprit chaleureux pierre et bois. Rez-de-chaussée : cuisine avec piano de cuisson ouverte sur le séjour de 40 m², avec salle-à-manger, salon et grand poêle à bois. Une chambre accessible aux personnes à mobilité réduite avec 1 lit 160, avec une grande salle d'eau privative, douche à l'italienne et WC. L'ensemble du rez-de-chaussée peut être accessible avec la mise à disposition de rampes amovibles et une entrée indépendante pour la chambre. Un WC séparé dans le hall d'entrée. A l'étage : une chambre double, lit en 160 avec baignoire et wc, une chambre double avec douche et WC, 2 chambres pour 4 avec douche et WC ,lit 160 et 2 lits 90 en mezzanine dans chacune. Espace détente et console de jeux sur le palier. Parking privatif. Cour et jardin de 750 m² fermés.
Chauffage électrique selon consommation. Bois offert. Pour bébé : chaise haute, lit parapluie, baignoire et table à langer. Découvrez aussi la cuisine des propriétaires, restaurateurs dans le village, chez eux ou grâce à leur service traiteur ou bien aux cours de cuisine, qu'ils peuvent vous proposer directement dans le gîte pour vos repas de famille. 14 personnes maximum dans le gîte, enfants et bébés compris.
A proximité : la route du crémant et les célèbres vignobles de Champagne. Vous apprécierez les promenades dans les belles forêts du Châtillonnais, le long de la Seine ou dans le Marais des Brosses. Parcours VTT et circuits de randonnées pédestres. Musée du Châtillonnais-Trésor de Vix à Châtillon-sur-Seine. Maison de la Forêt à Leuglay et accrobranches. Ancienne abbaye du Val des Choues. Vestiges des templiers. Circuit des Lavoirs. Source de la Seine.
Charges et suppléments : Linge de toilette : 5 € pour le séjour par personne. Chauffage électrique et électricité selon relevé de compteur (8 kwh/jour inclus). Panier de bois : offert
- Français, Anglais
- 5 chambre(s), 14 personnes(s)
- American Express, Carte bleue, Cartes de paiement, Chèques bancaires et postaux, Chèques Vacances, Espèces, Virements, Visa
- Animaux interdits
- Gîte Plus : Ménage draps, linge de toilette
- Nettoyage / ménage
- WIFI
- Pêche
- Voile
- Nuitée (meublé) : À partir de 172€ (2 nuit(s) minimum)
- Semaine (meublé) : À partir de 1200€
- Caution : À partir de 500€
Disponibilités données à titre indicatif. Pour plus d'informations, veuillez contacter le prestataire.
Contacter le propriétaire Réserver votre séjour





