
La Loge du Huchier
LE GîTE: Une halte idéale pour touristes et randonneurs.
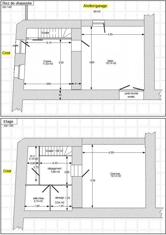
Au rez-de-chaussée: Le salon, avec vue sur le château, possède une cheminée à insert , 2 fauteuils crapauds et 2 banquettes (vrais lits de 80). Cuisine aménagée avec table pour les repas. A l’étage: Salle de bain avec baignoire, W.C. indépendants et dressing. La chambre avec climatisation est aménagée avec 2 lits de 90 jumelables et un fauteuil-lit dedépannage. Équipement bébé sur demande. Accès à internet wifi.Un espace détente, jardin d’hiver : aménagé dans un ancien atelier contigu au logement , vous disposez d’une table de ping-pong, d’un salon de jardin avec parasol chauffant et barbecue électrique. Garage fermé et accès au jardin avec tonnelle, table et fauteuils de jardin, bains de soleil/transats et barbecue à charbon.
CHARGES ET OPTIONS :
Location de draps : 8€ pers. / - linge de toilette par personne : 6 € / Ménage fin de séjour : 40 €
Électricité et chauffage : compris dans un forfait de 8 kW/jour, au-delà du forfait, le kW 0,20€.
Chauffage au bois : 1/8e de stère gratuit et 5,5 € pour le 1/8e supplémentaire.
1 animal de compagnie maximum.
Possible dépassement de capacité 2 personnes avec supplément 10€/jour (2 lits de 80).
Hébergement non adapté à la clientèle professionnelle.
- Français
- 1 chambre(s), 2 personnes(s)
- Chèques bancaires et postaux, Chèques Vacances, Espèces, Virements
- Animaux bienvenus
- Jeux pour enfants
- Location de linge
- WIFI
- Canoë-kayak
- Pêche
- Sentier de randonnée
- Nuitée (meublé) : À partir de 43€ (2 nuit(s) minimum)
- Semaine (meublé) : À partir de 301€
- Caution : À partir de 150€
Disponibilités données à titre indicatif. Pour plus d'informations, veuillez contacter le prestataire.
Contacter le propriétaire Réserver votre séjour





