
Gîte de la Gare 1
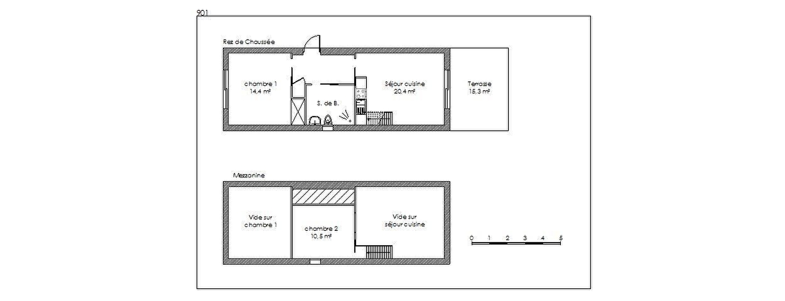
Au calme, en plein coeur du parc national de Forêts (en Champagne et Bourgogne), gîte contemporain en bois et aluminium sur 2 étages. Rez-de-chaussée en béton ciré : salon-salle à manger avec cuisine équipée et accès direct à une belle terrasse en bois. Une chambre 2 lits 80 jumelables. Une salle d'eau avec douche et WC. Etage : une chambre avec 2 lits 80 jumelables.
Chauffage par poêle à granulés à forte autonomie. Possibilité couchage supplémentaire dans le séjour (supplément de 10€/jour) ou dans la chambre du bas. Lit bébé et chaise haute sur demande.
Parking et terrain commun sur 2 hectares. 4 autres gîtes sur le terrain offrant une capacité totale de 20 à 25 personnes ( (sous les références : H21G027773 - H21G027769 - H21G027775 et H21P028049 pour l’ensemble).
A côté des gîtes, l'ancienne gare fait office de point d'accueil avec WC, buanderie commune (machine à laver et sèche-linge) et logement du gardien à l'étage. Panier de basket et filet de volley sur place. ATTENTION LES GITES DE LA GARE DE LEUGLAY N'ONT PAS LE LABEL TOURISME ET HANDICAP.
La Salle commune (équipée d'un coin cuisine avec four, plaques de cuisson, lave-vaisselle, frigo et micro-ondes) est mise gracieusement à disposition des locataires à partir de 4 gîtes réservés simultanément (sauf forfait ménage de 60€ obligatoire). Pour la réservation de 4 gîtes, mise à disposition de cette salle.
Tarif tout inclus : location des draps et du linge de toilette, ménage de fin de séjour ainsi que les charges de chauffage et d'électricité.
Supplément animal : 10€/jour
- Français
- 2 chambre(s), 4 personnes(s)
- American Express, Carte bleue, Cartes de paiement, Chèques bancaires et postaux, Chèques Vacances, Espèces, Virements, Visa
- Animaux bienvenus
- Gîte Plus : Ménage draps, linge de toilette
- Nettoyage / ménage
- WIFI
- Pêche
- Nuitée (meublé) : À partir de 72€ (1 nuit(s) minimum)
- Semaine (meublé) : À partir de 503€
- Caution : À partir de 300€
Disponibilités données à titre indicatif. Pour plus d'informations, veuillez contacter le prestataire.
Contacter le propriétaire





