
Domaine de Pommanges
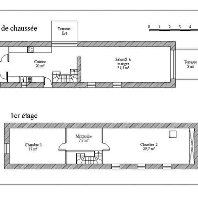
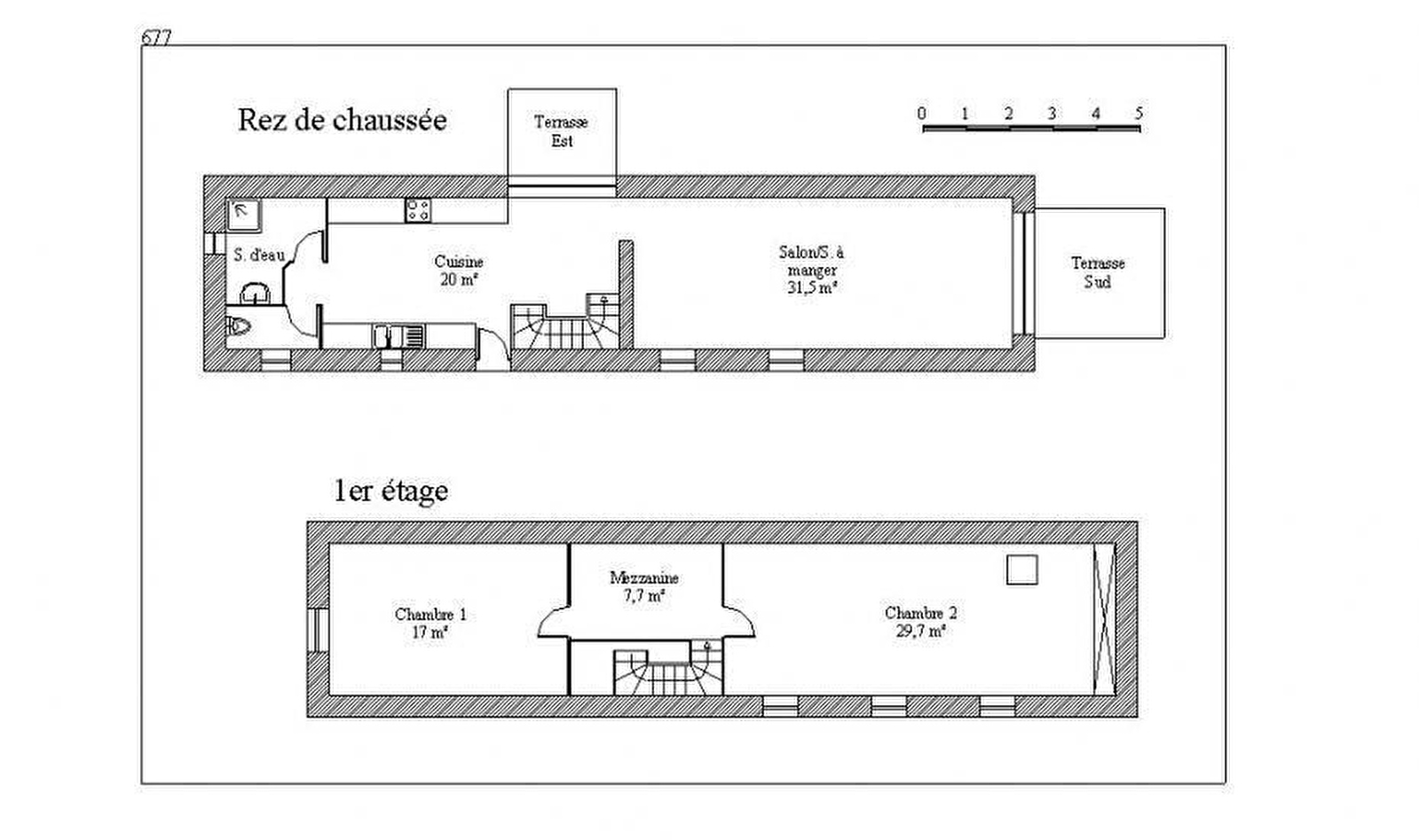
Dans un petit village, belle maison en pierre, ancienne et rénovée. Rez-de-chaussée: cuisine intégrée équipée. Vaste séjour-salon très lumineux, plafond avec poutraison, murs en pierres apparentes et baie vitrée. Salle d'eau. Wc. Etage: petite mezzanine avec bibliothèque. 1 grande chambre mansardée avec 1 lit en 140 et 1 lit en 90. Une chambre à la décoration actuelle avec 1 lit en 160. Lit bébé, chaise haute et baignoire pour enfant sur demande. Accès à la terrasse par la baie vitrée du salon avec vue sur la campagne. Cadre champêtre, terrain de 1500 m². Parking privé. Possibilité ménage quotidien et en fin de séjour avec supplément. Anglais parlé. Sur place: visite de cuverie, dégustation et vente de vins. A 8 km: possibilité ULM, balade en hélicoptère. Accès à la piscine (5x10m) des propriétaires entre 7h et 18h30,ouverte de fin mai à mi-septembre selon météo et sécurisée par une alarme.
Charges et suppléments : Ménage en fin de séjour : 40 €. Chauffage électrique et climation réversible, électricité en supplément selon consommation. Stère de bois 40€. Draps et linge de toilette fournis.
- Français, Anglais
- 2 chambre(s), 5 personnes(s)
- American Express, Carte bleue, Cartes de paiement, Chèques bancaires et postaux, Chèques Vacances, Espèces, Virements, Visa
- Animaux interdits
- Piscine
- Gîte Plus : Ménage draps, linge de toilette
- WIFI
- Équitation
- Pêche
- Nuitée (meublé) : À partir de 100€ (2 nuit(s) minimum)
- Semaine (meublé) : À partir de 700€
- Caution : À partir de 300€
Disponibilités données à titre indicatif. Pour plus d'informations, veuillez contacter le prestataire.
Contacter le propriétaire





