
A l’ombre du noyer
En face de la maison du propriétaire, gîte mitoyen à un logement. A l'étage sur un niveau et demi, accès par un escalier sous porche.
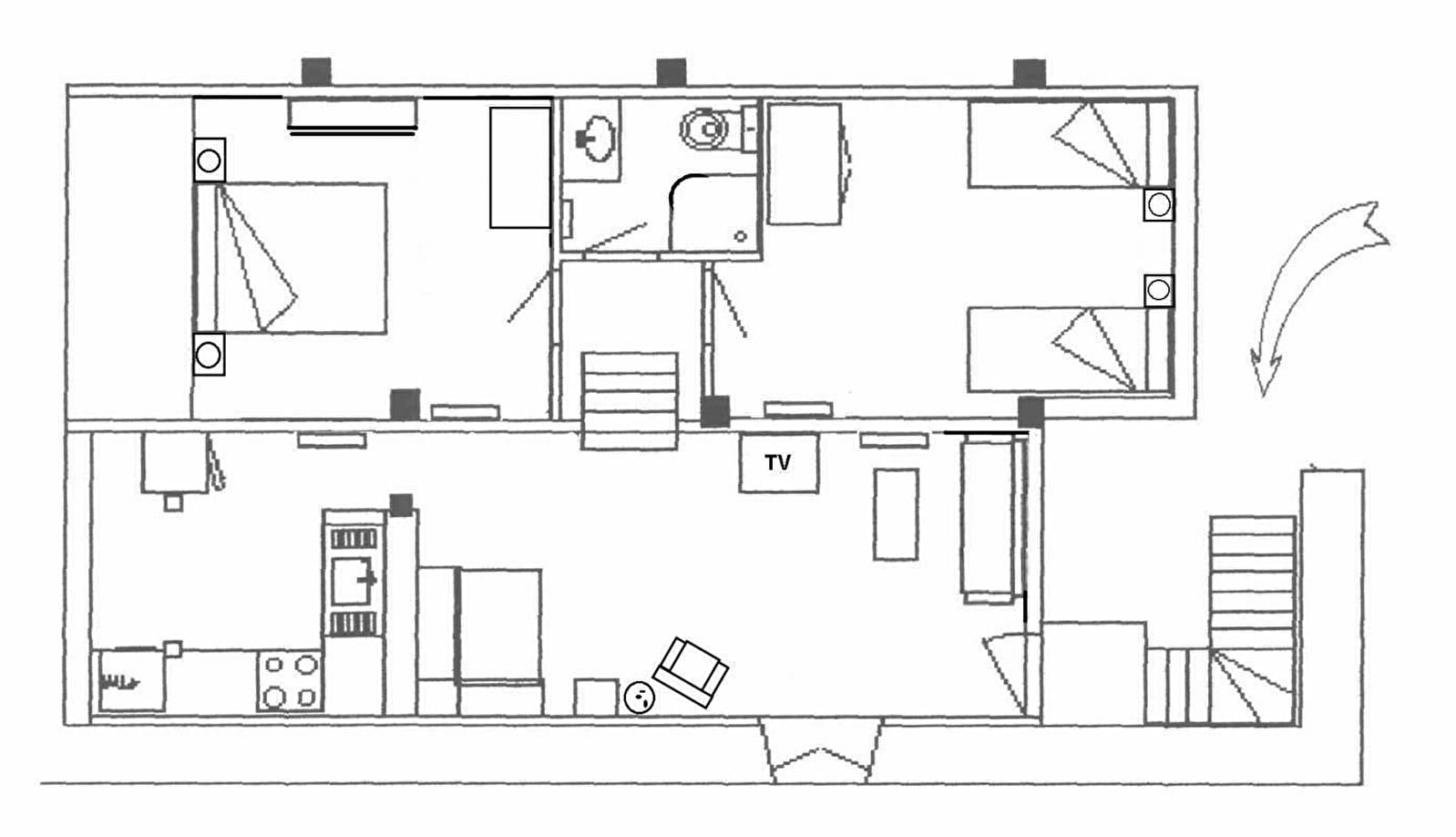
Cuisine intégrée au salon/séjour (pas de lave-vaisselle) comportant coin repas, convertible 2 places et télévision. 1/2 étage (accès par quelques marches ): 1 chambre 1 lit 2 places (+lit bébé à la demande), 1 chambre 2 lits 1 place, salle d'eau, WC. Terrain attenant aménagé. Location de draps possible 7€/parure. Forfait ménage sur demande à 35€. Animaux acceptés avec supplément à 5€/jour/animal.
- Français
- 2 chambre(s), 4 personnes(s)
- American Express, Carte bleue, Cartes de paiement, Chèques bancaires et postaux, Chèques Vacances, Espèces, Virements, Visa
- Animaux bienvenus
- Jeux pour enfants
- Location de linge
- WIFI
- Pêche
- Ski alpin
- Ski de fond
- Nuitée (meublé) : À partir de 37.23€ (7 nuit(s) minimum)
- Semaine (meublé) : À partir de 255.32€
- Caution : À partir de 300€
Disponibilités données à titre indicatif. Pour plus d'informations, veuillez contacter le prestataire.
Contacter le propriétaire





